ул. Торпедо, 45в
voronezh@kotel-kv.ru
8 (800) 551-70-98
Бесплатно по России
Чертеж
Уточните ваш запрос, если товар не подходит
Тип циклона

Постамент циклона в Воронеже

Цена 50 000 рублей постамента циклона в Воронеже

Цена на постамент циклона с доставкой от 50 000 рублей с НДС
Условия поставки:
Товар отсутствует
ТК по России и Казахстану
Безналичный расчет

Производим постаменты и опоры циклонов по индивидуальному заказу.

Технические характеристики
Отзывы
Об этом товаре еще нет отзывов. Будьте первым!
Оставьте ваш отзыв

Постамент циклона в Воронеже

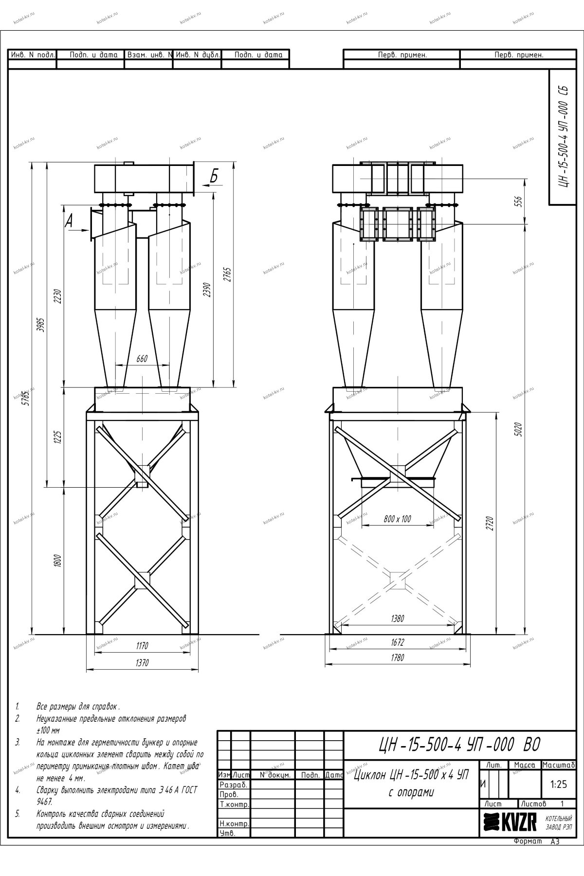
Постамент служит для установки циклона на требуемую высоту для удобной выгрузки сыпучих частиц. Изготавливается индивидуально, в зависимости от технического задания заказчика.

Постамент производится для следующих видов циклонов:

Циклоны ЦН 11 и ЦН 15 - используются для очистки газов и воздуха выделяющихся при следующих процессах производства - обжиг, агломерация, сушка, сжигание топлива и т.д. Циклоны маленьких диаметров не рекомендуется использовать при улавливании больших частиц пыли. Данные модели агрегатов производятся одиночными и групповыми. Групповые аппараты могут быть с камерой очищенного воздуха в виде "улитки" или в виде сборника, а одиночные - только с улиткой.

Циклон ЦН 24 - предназначен для очистки крупных фракций твердых частиц пыли, размером более 20 мкм. Применяется для отделения от газообразной среды взвешенных частиц сухой пыли, а также летучей золы. Не рекомендуется применять данные изделия для очистки газообразных сред, в которых имеются волокнистая или слипающаяся пыль, капельножидкая фаза, или вероятна конденсация паров.

Батарецные циклоны - предназначены для сухого улавливания золы. Агрегат состоит из большого количества параллельно установленных циклонных элементов.

Циклоны ЛИОТ - предназначенны для средней и грубой очистки от сухой не волокнистой не слипающейся пыли размером до 10 мкм. Могут применяться как самостоятельные аппараты, либо в качестве ступени предварительной очистки. Не предназначены для очистки газообразной среды, которая содержит жидкую и капельную фазы.

Циклоны СДК ЦН 33 - применяются для очистки газовоздушной среды от абразивных и слипающихся частиц.

Циклоны СК ЦН 34 - предназначены для очистки сажегазовых и сажевоздушных смесей от твёрдых частиц при пневмотранспортировке, аспирации и пневмоуборке сажевого (технического) углерода, очистка газового теплоносителя после распылительных сушилок дрожжевого производства гидролизных предприятий, эффективные при очистке газов от мелко-дисперсных пылей. Возможно использование во взрывоопасной, коррозионной среде.

Циклоны ЦОК - предназначены для очистки воздуха от пыли с повышенными абразивными свойствами, допускается применение при слипающихся пылях типа сажи и талька и другими слипающимися средами. Не рекомендуется применять во взрывоопасных средах.

Купить постамент циклона

Для того чтобы купить постамент для циклона в Воронеже, вы можете сделать заявку в отдел сбыта по телефону 8 (800) 551-70-98, либо оформить заявку через наш сайт. Наши менеджеры дадут консультацию по подбору оборудования и рассчитают стоимость доставки оборудования до вашего региона и населенного пункта.

Описание товара

    Купить постамент циклона в Воронеже

    Для получения консультации укажите номер вашего телефона
    Патенты на котельное оборудование

    Патенты

    Смотреть все патенты
    Сертификаты Завода

    Сертификаты

    Смотреть все сертификаты
    Членство в СРО

    Допуски

    Смотреть все допуски
    Отзывы о продукции котельного завода

    Отзывы о продукции котельного завода

    Смотреть все письма
    Аттестованная технология сварки

    Аттестованная технология сварки

    Смотреть все аттестаты
    Цена с НДС
    50 000